JRS半弓形臺式氣液壓力機
- 作動方式:雙動
作動條件:4~7kg/cm2壓縮空氣
液壓抗磨油:VG68#抗磨液壓油
工作溫度:0~60℃
電源:220V
氣缸耐壓:12kg/cm2
行程公差:+0.20mm 0.00mm
運行速度:25~45次/min
控制方式:電控、手控、腳控、氣控
玖容廠家直銷,價格從優,可非標定制!
JRS半弓形臺式氣液壓力機固定方式:半弓型臺式,螺絲固定于操作臺上。設備主要用于元件的裝配,主要包括壓裝、壓印、沖孔,鉚接等用途。玖容氣液壓力機品牌廠家直銷,價格從優,歡迎選購。產品若用于鉚接,鉚接方式的速度比油壓快,傳動比氣壓穩定,鉚接力可以無級調節,設備運行速度可以無級調速,獨特的"軟到位技術"保證工作過程沖擊振動小,無噪聲,極大地提高了工件鉚接加工質量及模具壽命。
此半弓形臺式氣液壓力機機身整體鑄造,弓形結構堅固高剛性,穩定,操作容易,耐磨損,可定點、定量自動潤滑,動作靈敏,速度快出力大,出力易調整,預壓及增壓均可按需調整,上下料方便,人性化考慮設計安全,操作舒適,適合長期作業;采用雙手操作,設有緊急停止按鈕及上下點動功能,安全性能高;有電控,氣控,手控及腳控等多種控制方式。
【JRS半弓形臺式氣液壓力機操作條件】:
咨詢熱線:400-833-2669
【JRS半弓形臺式氣液壓力機產品特點】:
1、以壓縮空氣為動力源,操作維護簡單,電力消耗低,無沖擊無噪音。
2、半弓型機身整體鑄造,整機結構堅固、穩定、操作容易,上下料方便,人性化考慮設計安全,操作舒適,適合長期作業,能實現效益效率雙豐收。
3、采用氣液增壓缸作為動作元件,利用空油轉化增壓,先進的“軟到位”沖壓技術和獨特的“增力自適應”沖壓技術,動作速度快、平穩、出力大,出力容易調整,改善了傳統油壓壓床的缺點。
4、只需調整氣壓壓力,就能達到需要的壓力,預壓及增壓出力均可按需精確調節。
5、可選配安全光柵、防護網、加熱模具、溫度控制及壓力傳感器等等輔助配件。
6、多功能產品,可根據不同的產品或模具,任意調整高度、速度、行程、壓力和沖壓時間,更換不同模具即可實現一機多用的經濟效益。
7、可用于裝配、沖壓、打印、成型、擠壓、沖孔、彎曲、鍛壓、壓入、印字、鉚合、修毛邊、切斷等工作場合。
8、可接受特殊規格定制(需提供噸位、行程、類型、工作臺面積、裝潢高度、配件及控制要求等)。
【JRS半弓形臺式氣液壓力機外形尺寸規格表】:
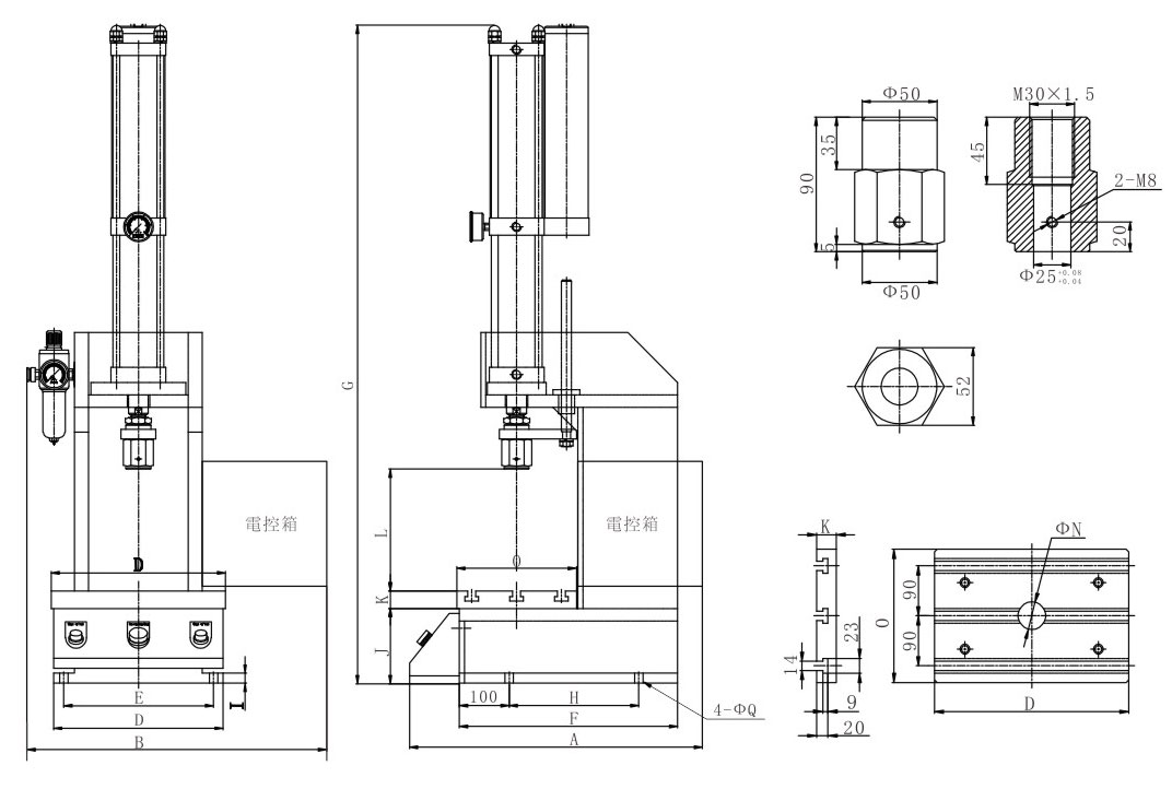
【JRS半弓形臺式氣液壓力機設計圖】:
注:此設計圖僅僅是舉例,因為不同規格產品外形尺寸有所差異,具體設計圖會在下單時由我司技術給出。玖容氣液壓力機廠家,到目前為止,已為3000多家企業進行了針對性的產品定制服務,服務過上萬家客戶,歡迎廣大新老客戶選型報價:400-833-2669。
【JRS半弓形臺式氣液壓力機應用場合】:
氣液增壓機是解決普通氣動壓力機壓力不足的理想機型,是克服液壓機功耗大、效率低、易污染的替代產品。目前在五金、電子電器、汽車配件、機械設備、印刷設備、高周波設備、鋰電池設備、軸承壓人設備、電子設備、吹瓶機械設備、燙金機械設備、低壓注膠設備、成型機械、電聲設備、紙塑設備、鉚接設備、壓力機械、非標自動化設備、金屬制品、電聲設備、機電設備、橡膠機械、冶金機械、建筑、鐘表元件、儀器儀表、溫控器、繼電器、工具、醫療用品、文體用品、生活用品等眾多行業在裝配、落料、切割、擠壓成型、塑料熔接、翻邊、裁斷、沖壓、壓入、壓彎、折彎、鍛壓鍛合、鉚接鉚合、修毛邊、沖孔、校準和壓印等場合中得到廣泛應用。
【JRS半弓形臺式氣液壓力機操作注意事項】:
1、在選型時,實際出力約為理論出力的80%,并需要考慮廠內壓力源之壓力值大小(我司產品理論出力以6kg/cm2壓縮空氣計算)。
2、停機未工作時應將氣液壓力機機臺壓力釋放及切斷電源,減少消耗能源及延長產品壽命。
3、注意三點組合之排水功能是否正常,若失效,則用手動方式定時排水或更換新產品。
4、增壓缸所采用液壓油為ISOVG-68#抗磨液壓油,當液壓油出現乳化現象或者使用半年后應更換液壓油;加油時應注意注入油量。
5、接上空壓源時,請將使用之配管清潔,除去其中的水分及沙塵等雜物。
【大噸位用四柱形氣液壓力機還是半弓型好?】:
您好,一般噸位在40噸及以上的話,我司建議使用四柱形氣液壓力機,四柱的大噸位沖壓更加穩定,導套采用進口高精密油墨軸承做導向,下壓平順穩定重復精度可達0.02MM,導柱采用高頻真空淬火處理可達到抗拉,耐磨之效果。而對于小噸位或者有上料方便性要求的建議使用半弓型氣液壓力機。
- *聯系人:
- *手機:
- 公司名稱:
- 郵箱:
- *采購意向:
-
*驗證碼:




